標準網球場地尺寸示意圖及詳解畫法和標準圖
網球運動是一項優美且富有激情的體育運動,被稱為世界第二大球類運動。但有誰知曉網球場地的標準大小呢?今天就我們一起去了解下。
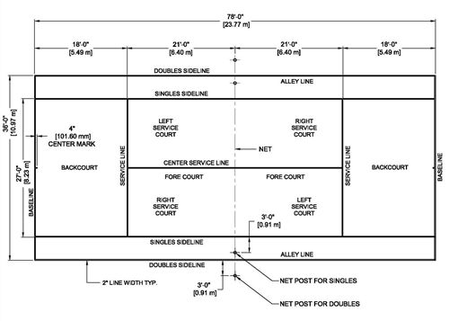
標準網球場地尺寸
一、球場:網球場地整體呈一個長方形,標準尺寸是36560厘米(長)×18280厘米(寬),這個尺寸是網球場地整體標準。其中比賽場地尺寸是2377厘米(長)×1097厘米(寬)。半場對角線長16170厘米。
二、線條:通常除端線寬度10厘米外,其他線的寬度均在5厘米。全場各區域的丈量除中線外,均從各線的外沿量計算。球場界線最好用白色、黃色或其它易于識別的顏色畫出,所有的線應是同一顏色。
端線:是指網球比賽場地離網最遠且平行的線條。
邊線:左右的內線是單打的范圍,外線則是雙打的范圍。后場的內線是雙打發球的時界限,接發球以后無論單打跟雙打都是算外線。
中線:聯結兩發球線的中點與邊線平行的線。
發球線:球網與端線中間的平行線。
標準網球場地面積
國際網聯和國家體委頒布的《網球競賽規則》中規定,標準網球場地的占地面積不得小于670平方米(南北長36.6米(南北長)×東西寬18.3米),這一尺寸也是一片標準網球場地四周圍擋網或室內建筑內墻面的凈尺寸。在這個面積內,有效雙打場地的標準尺寸是:23.77米(長)×10.98米(寬),在每條端線后應留有余地不小于6.40米,在每條邊線外應流有余地不小于3.66米。在球場安裝網柱,兩柱中心測量,柱間距是12.80米,網柱頂端距地面是0.914米。
如果是兩片或兩片以上相連而建的并行網球場地。相鄰場地邊線之間的距離不小于4.0米。如果是室內網球場,端線6.40米以外的上空凈高不小于6.40米,室內屋頂在球網上空的凈高不低于11.50米。
- 上一篇:廣州康怡幼兒園室內地板楓木紋PVC地板安裝完工 2015/8/25
- 下一篇: 揚州將在全市域推進體育設施建設迎接省運會 2015/8/24


